- Soort bouw:Nieuwbouw
- Soort aanbod:Appartement
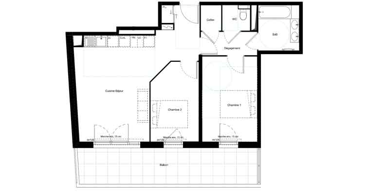
- Aantal slaapkamers:2
- Woonoppervlakte:60m²
- Prijs per m²:€ 7,516.67
- Ons kenmerk:mil-CIP-1040-46370
Omschrijving
Dit nieuwbouwproject in Nice sluit naadloos aan bij de gewilde wijk Saint-Roch en combineert moderne lijnen met authentieke charme. Gelegen aan de oostkant van de stad, biedt het een eigentijdse, verzorgde architectuur die het stedelijke weefsel respecteert en toch een aangename leefomgeving creëert. De lichte, doordacht ingedeelde woningen beschikken over terrassen of privé-tuinen — perfect om te genieten van het mediterrane klimaat.
Uitstekend aangesloten op tramlijn 1 en vlakbij station Riquier, onderscheidt dit project zich door zijn wandelbare ligging ten opzichte van winkels, scholen en dagelijkse voorzieningen. De wijk is volop in transformatie maar behoudt zijn dorpsachtige sfeer met een markt en buurtgerichte voorzieningen, waardoor het dynamiek en gezelligheid combineert.
Het project is ontworpen met comfort en kwaliteit in het achterhoofd: moderne afwerkingen, optimale isolatie en slimme, verbonden apparatuur. Groene zones rond het gebouw zorgen voor rust en harmonie, zodat u midden in het levendige Nice toch een vredige thuisbasis vindt.
Wonen aan de Côte d’Azur is gespecialiseerd in VEFA-nieuwbouwprojecten en begeleidt u van A tot Z. Bij aankoop profiteert u van de wettelijke tienjarige constructiewaarborg, lagere notariskosten en de mogelijkheid om indeling en afwerking te personaliseren voordat de bouw start — de ideale kans om uw woning naar wens te laten ontwerpen.
Kaart
Vraag informatie aan
"*" geeft vereiste velden aan



