- Soort bouw:Nieuwbouw
- Soort aanbod:Appartement
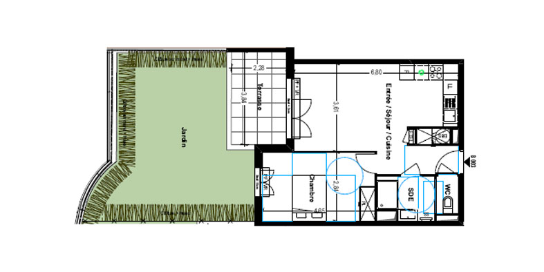
- Aantal slaapkamers:1
- Woonoppervlakte:46m²
- Prijs per m²:€ 5,478.26
- Ons kenmerk:mil-CIP-1036-46261
Omschrijving
Een uitzonderlijke woonbeleving tussen authenticiteit en prestige
Ontdek deze nieuwe residentie in Cogolin, verscholen in het hart van een privé-domein dat absolute rust biedt, en toch op slechts enkele minuten van de prestigieuze Golf van Saint-Tropez ligt. Gelegen in een zorgvuldig bewaard gebleven wijk waar natuur en elegantie elkaar ontmoeten, combineert dit project het authentieke dorpsleven van Cogolin met de glamoureuze aantrekkingskracht van de Côte d’Azur. Geniet van een serene sfeer met snelle toegang tot de mooiste stranden van de regio.
Wonen in een privé-domein
De residentie bevindt zich in een ongerepte natuurlijke omgeving binnen een privé-domein met een stijlvolle gemeenschappelijke zwembad — een echt toevluchtsoord voor bewoners. Deze exclusieve locatie is ideaal voor wie het perfecte evenwicht zoekt tussen landelijke rust en de nabijheid van culturele en vrijetijdsactiviteiten. Hier beleeft u de zachte Provençaalse levensstijl, met alle voorzieningen van de Golfe de Saint-Tropez binnen handbereik.
Lichte en ruime appartementen
De appartementen (van 2 tot 4 kamers) zijn ontworpen voor maximaal comfort en overvloedig daglicht. Elk appartement krijgt ruime buitenruimtes — balkons, terrassen of privé-tuinen — die uitnodigen om optimaal te genieten van het zonnige klimaat. Met moderne en verzorgde afwerkingen bieden deze woningen een hoogwaardige woonbeleving in een idyllische omgeving.
Ideale ligging tussen dorp en tropézienne glamour
De residentie combineert het beste van twee werelden: het pittoreske centrum van Cogolin op korte afstand en de beroemde stranden en het levendige nachtleven van Saint-Tropez vlakbij. Of u nu houdt van de rust van een Provençaals dorp of het bruisende sociale leven van de Côte d’Azur, hier vindt u beide moeiteloos.
Een zeldzame kans in de Golfe van Saint-Tropez
Investeren in deze nieuwbouwresidentie betekent kiezen voor een exclusief adres in een van de meest gewilde gebieden aan de Côte d’Azur. Het privé-domein met zwembad en hoogwaardige voorzieningen is een belangrijk pluspunt. Dit project verenigt authenticiteit, moderniteit en prestige — een unieke opportuniteit die u niet mag laten voorbijgaan.
Wonen aan de Côte d’Azur begeleidt u
Wonen aan de Côte d’Azur is gespecialiseerd in VEFA-nieuwbouw en begeleidt u met expertise tijdens het hele aankoopproces. U profiteert van een tienjarige constructiewaarborg, lagere notariskosten en de mogelijkheid om de indeling en afwerking naar wens aan te passen voordat de bouw begint. Neem contact op en verzeker uzelf van de kans om als een van de eersten te wonen in deze bijzondere residentie.
Kaart
Vraag informatie aan
"*" geeft vereiste velden aan











