- Soort bouw:Nieuwbouw
- Soort aanbod:Appartement
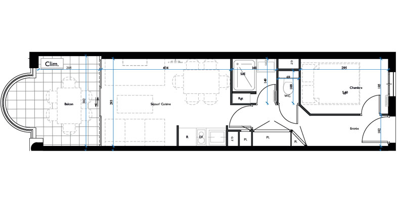
- Aantal slaapkamers:1
- Woonoppervlakte:27m²
- Prijs per m²:€ 8,344.44
- Ons kenmerk:mil-CIP-1059-46774
Omschrijving
Dit exclusieve renovatieproject in Cannes ligt in één van de meest gewilde wijken: La Croix des Gardes. Deze residentiële buurt, hoog gelegen in een uitgestrekt dennenbos, biedt een rustige, groene omgeving met panoramisch uitzicht op de Middellandse Zee en de Îles de Lérins. Op enkele minuten van het stadscentrum combineert het project serene privacy met uitstekende bereikbaarheid — perfect als vakantieverblijf of als blijvende investering. Wonen aan de Côte d’Azur, gespecialiseerd in VEFA-nieuwbouw, begeleidt dit project en biedt tegelijk aantrekkelijke voordelen zoals verlaagde notariskosten. Bovendien ontvangt u een garantie van 10 jaar op de uitgevoerde constructiewerken.
De residentie omvat 31 smaakvol gerenoveerde appartementen, van studio’s tot driekamerwoningen, elk met een privéterras of een eigen tuin. De interieurs spelen met natuurlijke materialen en lichte, mediterrane tinten zodat binnen en buiten naadloos in elkaar overvloeien. Het interieurontwerp is geïnspireerd op de maritieme sfeer van de Côte d’Azur en legt de nadruk op slim ruimtegebruik en maximaal comfort. Voor kopers die hun droomwoning willen vormgeven is er de mogelijkheid om indeling en afwerking aan te passen vóór de aanvang van de werken — zo creëert u een persoonlijk en uniek interieur.
Het aanbod aan voorzieningen tilt het wooncomfort naar een hoger niveau: een infinitypool met zeezicht, tennisbaan, sportzones, conciërgedienst en horecamogelijkheden binnen de residentie. Door de hoogwaardige afwerking en de groene omgeving voelt dit project aan als een exclusief toevluchtsoord tussen natuur en kust. Zowel eigenaars als investeerders en vakantiegasten vinden hier rust, luxe en een verfijnde levensstijl die past bij de identiteit van Cannes. De combinatie van comfort, services en locatie maakt dit tot een residentie van hoog niveau.
La Croix des Gardes overtuigt door authenticiteit en stilte, terwijl de stranden en het levendige centrum van Cannes nabij zijn — een stad die internationaal gekendstaat om zijn filmfestival en kosmopolitische allure. Het project komt in aanmerking voor de LMNP-status, wat interessante fiscale voordelen biedt voor de verhuur van gemeubileerde woningen. De zeldzame ligging, het aantrekkelijke rendementspotentieel en de geoptimaliseerde fiscaliteit maken dit een uniek kansrijk vastgoedproject aan de Côte d’Azur. Wonen aan de Côte d’Azur staat u graag persoonlijk bij met advies over onze VEFA-specialisatie, de 10-jarige bouwgarantie, verlaagde notariskosten en de mogelijkheid om indeling en afwerking te verfijnen voor de start van de werken.
Kaart
Vraag informatie aan
"*" geeft vereiste velden aan












