
Dit nieuws komt vers van de tekentafel en betreft een nieuwbouw project in een rustige wijk in Antibes. Omgeven door kleine residenties ligt hier een historische citroenboomgaard en de ingestorte restanten van wat eens een boerderij was. De boomgaard blijft gelukkig, maar de boerderij maakt plaats voor een aantal luxe appartementen waarvan enkele een breed zeezicht hebben, over het oude Antibes heen. Als u niet in de drukte wilt wonen maar wel alle gezelligheid onder handbereik zoekt, dan is dit nieuwbouw project in Antibes iets voor u.
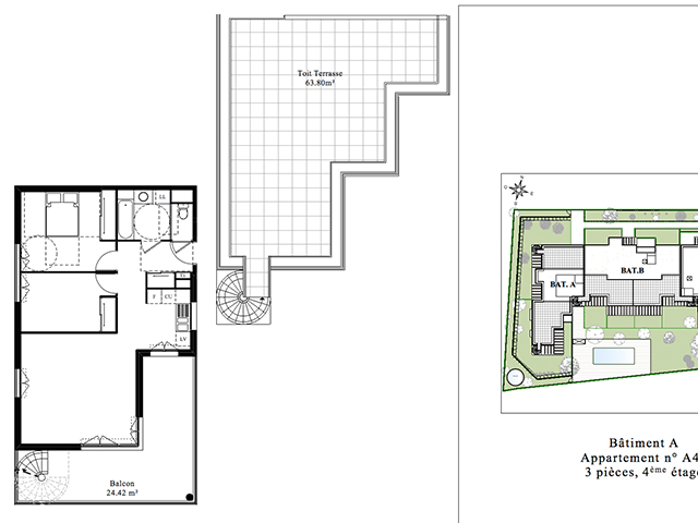
De zandstranden van Antibes en de gezellige haven bereikt u binnen tien minuten en ook Biot, Valbonne, Cannes en Nice zijn dichtbij. We kunnen u in dit complex diverse appartementen aanbieden, vanaf 250.000 euro. Het appartement dat wij u extra aanbieden is werkelijk uniek en ligt op de bovenste verdieping van het A gebouw. Dit gebouw biedt het beste zeezicht, twee slaapkamers en een groot buitenterras voor die heerlijke zomeravonden of Zuid Franse zonnige ochtendjes.

U heeft hier de hele dag door de zon; van links naar rechts. Maar sinds deze week is een aantal appartementen uitgerust met maar liefst 63 M2 extra dak terras voor uiteraard een nóg beter zicht op zee. Binnen het domein moet u dan wel even met de lift naar beneden om te genieten van een heerlijke duik in het zwembad. De prijs voor dit alles is 448.000 euro, exclusief parkeerplaats of garagebox.
En dat allemaal in Antibes, op zo’n heerlijke locatie. Oplevering eerste kwartaal 2019. aanbetaling 3%. Notariskosten 2,5%. Reageert u snel en bel met Ab en Jo op +33770186203 of mail ons op info@wonenaandecotedazur.nl

